【产品用途】
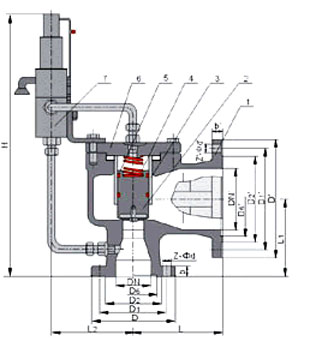
A46先导式安全阀是一种新颖结构的安全阀。主要用于石油天气、化工、电力、冶金和城市燃气等领域,是受压设备、容器或管路上的最佳超压保护装置。先导式安全阀的主要优点是变弹簧直接作用为导阀间接作用,提高了动作的灵敏度,而且主阀采用套筒活塞式,双重密封阀座结构,动作精 度高、重复性好、回座快、不泄漏、能带高背压排放、工作寿命长、工作稳定可靠,46F/Y先导式泄压安全阀还可以在线调校、反复启跳排放后,仍然能自动回 座,关闭严格,操作维护方便。
【产品特点】
- 阀座软密封保证安全阀启跳前后的良好密封性
- 允许工作压力接近安全阀的整定压力
- 较小超压就能使主阀迅速打达到全启状态
- 安全阀动作性能和开启高度不受背压的影响
- 启闭压差可以调节
- 导阀不流动型结构设计减少了有害介质的排放和环境污染
- 可以在线检测安全阀的整定压力
【执行标准】
设计规范:GB/T 12243
结构长度:GB/T 12221
法兰连接:JB/T 79
试验与检验:GB/T 12242
产品标识:GB/T 12220
供货规范:JB/T 7928
A46F(Y)-25(P,R,R3)
A46F(Y)-40(P,R,R3)
A46F(Y)-64(P,R,R3)
A46F(Y)-100(P,R,R3)
KA46F(Y)-16C(P,R,R3)
KA46F(Y)-25(P,R,R3)
KA46F(Y)-40(P,R,R3)
KA46F(Y)-64(P,R,R3)
KA46F(Y)-100(P,R,R3)

设计规范:GB/T 12243
结构长度:GB/T 12221
法兰连接:JB/T 79
试验与检验:GB/T 12242
产品标识:GB/T 12220
供货规范:JB/T 7928
【产品型号】
A46F(Y)-16C(P,R,R3)A46F(Y)-25(P,R,R3)
A46F(Y)-40(P,R,R3)
A46F(Y)-64(P,R,R3)
A46F(Y)-100(P,R,R3)
KA46F(Y)-16C(P,R,R3)
KA46F(Y)-25(P,R,R3)
KA46F(Y)-40(P,R,R3)
KA46F(Y)-64(P,R,R3)
KA46F(Y)-100(P,R,R3)
【整定压力等级】
| 公称压力(MPa) | 整定压力等级 | |||||||
| 1.6 | 0.06~0.1 | 0.1~0.16 | 0.16~0.25 | 0.4~0.6 | 0.6~0.8 | 0.8~1.0 | 1.0~1.3 | 1.3~1.6 |
| 2.5 | 1.3~1.6 | 1.6~2.0 | 2.0~2.5 | |||||
| 4.0 | 1.3~1.6 | 1.6~2.0 | 2.0~2.5 | 2.5~3.2 | 3.2~4.0 | |||
| 6.4 | 2.5~3.2 | 3.2~4.0 | 4.0~5.0 | 5.0~6.4 | ||||
| 10.0 | 3.2~4.0 | 4.0~5.0 | 5.0~6.4 | 6.4~8.0 | 8.0~10.0 | |||
【性能参数】
| 型号 |
铸钢型 WCB |
304不锈钢型 | 316不锈钢型 | 316L不锈钢型 | |
| 口径范围 | DN25~DN200 | ||||
| 适用温度 | ≤200°C | ||||
| 适用介质 | 水、油品、气体 | 腐蚀性介质 | 腐蚀性介质 | 腐蚀性介质 | |
| 材料 | 1、阀体 | WCB | CF8 | CF8M | CF3M |
| 2、阀座 | 2Cr13/2Cr13+PTFE | 304SS/304SS+PTFE | 316SS/316SS+PTFE | 316L/316L+PTFE | |
| 3、导向套 | 304SS | 304SS | 316SS | 316L | |
| 4、弹簧 | 50CrVA | 50CrVA包覆PTFE | 50CrVA包覆PTFE | 50CrVA包覆PTFE | |
| 5、O型圈 | viton | viton | viton | viton | |
| 6、阀盖 | WCB | CF8 | CF8M | CF3M | |
| 7、导阀 | 304SS | 304SS | 316SS | 316L | |
【主要外形尺寸】
| 公称压力 |
公称 通径 |
do | L | L1 | L2 | H | DN’ |
|
1.6MPa 2.5MPa |
25 | 15 | 110 | 95 | 150 | 365 | 32 |
| 32 | 20 | 115 | 100 | 150 | 375 | 40 | |
| 40 | 25 | 120 | 110 | 160 | 390 | 50 | |
| 50 | 32 | 135 | 120 | 160 | 410 | 65 | |
| 65 | 40 | 160 | 140 | 175 | 435 | 80 | |
| 80 | 50 | 170 | 135 | 175 | 451 | 100 | |
| 100 | 65 | 195 | 175 | 195 | 500 | 125 | |
| 125 | 80 | 210 | 190 | 220 | 526 | 150 | |
| 150 | 100 | 255 | 230 | 265 | 623 | 175 | |
| 200 | 125 | 300 | 260 | 300 | 690 | 250 | |
| 4.0MPa | 25 | 15 | 110 | 95 | 150 | 365 | 32 |
| 32 | 20 | 115 | 100 | 150 | 375 | 40 | |
| 40 | 25 | 120 | 110 | 160 | 390 | 50 | |
| 50 | 32 | 135 | 120 | 160 | 410 | 65 | |
| 65 | 40 | 160 | 140 | 175 | 435 | 80 | |
| 80 | 50 | 170 | 135 | 175 | 451 | 100 | |
| 100 | 65 | 195 | 175 | 195 | 500 | 125 | |
| 125 | 80 | 210 | 190 | 220 | 526 | 150 | |
| 150 | 100 | 255 | 230 | 265 | 623 | 175 | |
| 200 | 125 | 300 | 260 | 300 | 690 | 250 | |
| 6.4MPa | 25 | 15 | 110 | 100 | 160 | 365 | 32 |
| 32 | 20 | 130 | 110 | 160 | 375 | 40 | |
| 40 | 25 | 130 | 120 | 170 | 445 | 50 | |
| 50 | 32 | 135 | 130 | 195 | 460 | 65 | |
| 65 | 40 | 175 | 160 | 225 | 495 | 80 | |
| 80 | 50 | 175 | 160 | 225 | 525 | 100 | |
| 100 | 65 | 195 | 195 | 245 | 565 | 125 | |
| 150 | 100 | 280 | 265 | 265 | 610 | 200 | |
| 200 | 125 | 300 | 295 | 300 | 680 | 250 | |
| 10.0MPa | 25 | 15 | 110 | 100 | 160 | 365 | 32 |
| 32 | 20 | 130 | 110 | 160 | 375 | 40 | |
| 40 | 25 | 130 | 120 | 170 | 445 | 50 | |
| 50 | 32 | 135 | 130 | 195 | 460 | 65 | |
| 65 | 40 | 175 | 160 | 225 | 495 | 80 | |
| 80 | 50 | 175 | 160 | 225 | 525 | 100 | |
| 100 | 65 | 195 | 195 | 245 | 565 | 125 | |
| 150 | 100 | 280 | 265 | 265 | 610 | 200 | |
| 200 | 125 | 300 | 295 | 300 | 680 | 250 |
【结构图片】

声明:本文中所有文字、数据、图片均适用于参考,A46先导式安全阀的具体性能参数、结构尺寸参数、价格等详情,请联系我们的销售、技术工程师,电话:021-5266 6877。

