【产品用途】
A44带扳手弹簧全启封闭式安全阀采用封闭式阀盖和阀帽设计,安全阀开启排放时,介质不会向外界泄漏,而全部通过排泄管排掉,又可防止灰尘等杂质进入阀内,带提升扳手可定期检验安全阀的灵活性和密封性能。
【产品特点】
1、全启式结构,排量大2、阀瓣处设有反冲盘部件
3、全封闭结构,有效防止介质外漏
4、整定压力偏差小,可达±3%
5、启闭压差≤15%
6、选用优质的弹簧钢,保证弹簧的寿命和稳定性
7、平面结构的阀瓣和阀座易于维修和重新加工
【执行标准】
设计规范:GB/T 12243结构长度:GB/T 12221
法兰连接:JB/T 79
试验与检验:GB/T 12242
产品标识:GB/T 12220
供货规范:JB/T 7928
【产品型号】
A44Y-16C(25,40,64,100)A44Y-16P(25P,40P,64P,100P)
A44Y-16R(25R,40R,64R,100R)
A44Y-16R3(25R3,40R3,64R3,100R3)
【整定压力等级】
| 公称压力(MPa) | 整定压力等级 | |||||||
| 1.6 | 0.06~0.1 | 0.1~0.16 | 0.16~0.25 | 0.4~0.6 | 0.6~0.8 | 0.8~1.0 | 1.0~1.3 | 1.3~1.6 |
| 2.5 | 1.3~1.6 | 1.6~2.0 | 2.0~2.5 | |||||
| 4.0 | 1.3~1.6 | 1.6~2.0 | 2.0~2.5 | 2.5~3.2 | 3.2~4.0 | |||
| 6.4 | 2.5~3.2 | 3.2~4.0 | 4.0~5.0 | 5.0~6.4 | ||||
| 10.0 | 3.2~4.0 | 4.0~5.0 | 5.0~6.4 | 6.4~8.0 | 8.0~10.0 | |||
【性能参数】
| 型号 |
铸钢型 A44Y-C |
304不锈钢型 A44Y-P |
316不锈钢型 A44-R |
316L不锈钢型 A44Y-R3 |
|
| 口径范围 | DN15~DN400 | ||||
| 适用温度 | ≤200°C | ||||
| 适用介质 | 水、蒸汽、油品 | 腐蚀性介质 | 腐蚀性介质 | 腐蚀性介质 | |
| 材料 | 1、阀座 | 2Cr13 | CF8 | CF8M | CF3M |
| 2、阀体 | WCB | CF8 | CF8M | CF3M | |
| 3、调节圈 | 2Cr13 | 304SS | 316SS | 316L | |
| 4、反冲盘 | 2Cr13 | 304SS | 316SS | 316L | |
| 5、阀瓣 | 2Cr13 | 304SS | 316SS | 316L | |
| 6、导向套 | 2Cr13 | 304SS | 316SS | 316L | |
| 7、阀盖 | WCB | CF8 | CF8M | CF3M | |
| 8、弹簧 | 50CrVa | 50CrVa包覆TEFLON | 50CrVa包覆TEFLON | 50CrVa包覆TEFLON | |
| 9、阀杆 | 2Cr13 | 2Cr13 | 316SS | 316L | |
| 10、扳手 | ZG200 | ZG200 | ZG200 | ZG200 | |
| 11、调整螺杆 | 45#钢 | 2Cr13 | 2Cr13 | 2Cr13 | |
| 12、保护罩 | ZG200 | ZG200 | ZG200 | ZG200 | |
| 密封面材料 | 堆焊Co基硬质合金 | ||||
【主要外形连接尺寸】
| 公称压力 | 公称通径 | do | DN | L | L1 | ≈H |
| 1.6MPa | 20 | 15 | 25 | 110 | 95 | 378 |
| 25 | 16 | 32 | 110 | 95 | 378 | |
| 32 | 20 | 40 | 115 | 100 | 378 | |
| 40 | 25 | 50 | 120 | 110 | 406 | |
| 50 | 32 | 65 | 135 | 120 | 450 | |
| 65 | 40 | 80 | 160 | 140 | 520 | |
| 80 | 50 | 100 | 170 | 135 | 525 | |
| 100 | 65 | 125 | 195 | 175 | 690 | |
| 125 | 80 | 150 | 210 | 190 | 780 | |
| 150 | 100 | 175 | 255 | 230 | 838 | |
| 200 | 125 | 250 | 300 | 260 | 992 | |
| 250 | 150 | 300 | 350 | 320 | 1266 | |
| 300 | 220 | 400 | 370 | 350 | 1283 | |
| 350 | 250 | 500 | 500 | 450 | 1520 | |
| 400 | 280 | 500 | 500 | 450 | 1530 | |
| 2.5MPa | 20 | 15 | 25 | 110 | 95 | 378 |
| 25 | 16 | 32 | 110 | 95 | 378 | |
| 32 | 20 | 40 | 115 | 100 | 378 | |
| 40 | 25 | 50 | 120 | 110 | 406 | |
| 50 | 32 | 65 | 135 | 120 | 450 | |
| 65 | 40 | 80 | 160 | 140 | 520 | |
| 80 | 50 | 100 | 170 | 135 | 525 | |
| 100 | 65 | 125 | 195 | 175 | 690 | |
| 125 | 80 | 150 | 210 | 190 | 780 | |
| 150 | 100 | 175 | 255 | 230 | 838 | |
| 200 | 125 | 250 | 300 | 260 | 992 | |
| 250 | 150 | 300 | 350 | 320 | 1266 | |
| 300 | 220 | 400 | 370 | 350 | 1283 | |
| 4.0MPa | 20 | 15 | 25 | 110 | 95 | 378 |
| 25 | 16 | 32 | 110 | 95 | 378 | |
| 32 | 20 | 40 | 115 | 100 | 378 | |
| 40 | 25 | 50 | 120 | 110 | 406 | |
| 50 | 32 | 65 | 135 | 120 | 450 | |
| 65 | 40 | 80 | 160 | 140 | 520 | |
| 80 | 50 | 100 | 170 | 135 | 525 | |
| 100 | 65 | 125 | 195 | 175 | 690 | |
| 125 | 80 | 150 | 210 | 190 | 780 | |
| 150 | 100 | 175 | 255 | 230 | 838 | |
| 200 | 125 | 250 | 300 | 260 | 992 | |
| 250 | 150 | 300 | 350 | 320 | 1266 | |
| 6.4MPa | 20 | 10 | 25 | 96 | 85 | 264 |
| 25 | 16 | 32 | 110 | 100 | 277 | |
| 32 | 20 | 40 | 130 | 110 | 289 | |
| 40 | 25 | 50 | 130 | 120 | 319 | |
| 50 | 32 | 65 | 135 | 130 | 389 | |
| 65 | 40 | 80 | 175 | 160 | 493 | |
| 80 | 50 | 100 | 175 | 160 | 483 | |
| 100 | 65 | 125 | 195 | 195 | 613 | |
| 150 | 100 | 200 | 280 | 265 | 894 | |
| 10.0MPa | 20 | 10 | 25 | 96 | 85 | 264 |
| 25 | 16 | 32 | 110 | 100 | 277 | |
| 32 | 20 | 40 | 130 | 110 | 289 | |
| 40 | 25 | 50 | 130 | 120 | 319 | |
| 50 | 32 | 65 | 135 | 130 | 389 | |
| 65 | 32 | 80 | 175 | 160 | 493 | |
| 80 | 40 | 100 | 175 | 160 | 483 | |
| 100 | 50 | 125 | 195 | 195 | 613 | |
| 150 | 80 | 200 | 280 | 265 | 894 |
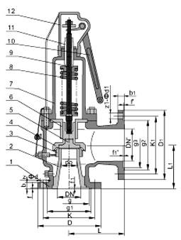
【结构图片】

声明:本文中所有文字、数据、图片均适用于参考,A44带扳手弹簧全启封闭式安全阀的具体性能参数、结构尺寸参数、价格等详情,请联系我们的销售、技术工程师,电话:021-5266 6877。

