【产品用途】
锻钢闸阀按照API 602标准设计制造,提供三种阀盖设计形式:螺栓式阀盖,焊接式阀盖,压力自紧密封阀盖,用户可根据需要选用不同的形式,锻钢闸阀提供法兰、NPT螺纹、焊接式三种连接方式,适用于 Class150~2500 、工作温度 -29~425℃(碳钢)或 -29~500℃(不锈钢)的小口径管路上,用于截断或接通管路中的介质,选用不同的材质,可分别适用于水、蒸汽、油品、硝酸、醋酸、氧化性介质、尿素等多种介质
。
。
【产品特点】
1. 全径或缩径;2. 明杆支架式(OS & Y);
3. 自定心压板压套式;
4. 螺栓连接、缠绕垫片密封式阀盖;
5. 螺纹连接、全焊密封式阀盖以及螺纹连接内压自紧式阀盖;
6. 整体式上密座;
7. 承插端符合ASMEB16.11;
8. 螺纹连接端(NPT)符合ANSI/ASMEB1.20.1。
【执行标准】
设计规范:JB/T 7746、API602结构长度:JB/T 7746、工厂规范
承插口/螺纹:JB/T1751/GB7306、ANSI B16.11/B2.1
试验与检验:JB/T 9092、API598
压力-温度:GB/T 9131、ANSI B16.34
产品标识:GB/T 12220、MSS SP25
供货规范:JB/T 7928
【产品型号】
| 材质 | 国标型号 | 美标型号 |
| A105 |
ZD41H/Y-16C |
ZD41H/Y-C150 ZD41H/Y-C300 ZD41H/Y-C600 ZD41H/Y-C900 ZD41H/Y-C1500 ZD41H/Y-C2500 |
|---|---|---|
| 304SS |
ZD41H/Y-16P |
ZD41H/Y-C150P ZD41H/Y-C300P ZD41H/Y-C600P ZD41H/Y-C900P ZD41H/Y-C1500P ZD41H/Y-C2500P |
| 316SS |
ZD41H/Y-16R |
ZD41H/Y-C150R ZD41H/Y-C300R ZD41H/Y-C600R ZD41H/Y-C900R ZD41H/Y-C1500R ZD41H/Y-C2500R |
【产品性能规范】
| 公称压力(Mpa) | 实验压力 | 工作温度(℃) | ||
|---|---|---|---|---|
| 强度(水)(Mpa) | 密封(水)空气 | 低压密封空气(Mpa) | ||
| 1.6 | 2.4 | 1.76 | 0.6 | 350 |
| 2.5 | 3.75 | 3.75 | 0.6 | |
| 4.0 | 6.0 | 4.4 | 0.6 | |
| 6.4 | 9.6 | 7.04 | 0.6 | |
| 10.0 | 15.0 | 11.0 | 0.6 | |
【主要零件材质】
| 零件名称 | 材质 | ||
|---|---|---|---|
| 阀体/阀盖 | A105 | 304SS | 316SS |
| 闸板 | A105 | 304SS | 316SS |
| 阀杆 | 13Cr | 304SS | 316SS |
| 填料 | 柔性石墨 | PTFE编织 | PTFE编织 |
| 垫片 | 304L+石墨 | 304L+PTFE | 316L+PTFE |
| 压盖 | A105 | 304SS | 316SS |
| 填料压环 | A105 | 304SS | 316SS |
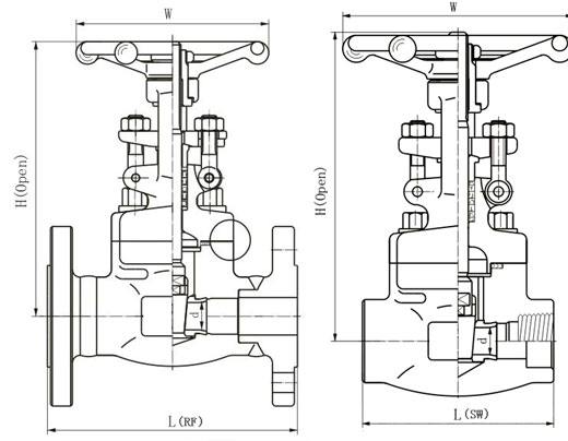
【主要外形连接尺寸】


【结构图片】

声明:本文中所有文字、数据、图片均适用于参考,锻钢闸阀的具体性能参数、结构尺寸参数、价格等详情,请联系我们的销售、技术工程师,电话:021-5266 6877。

