【产品介绍】
ZGB-2抽屉式波纹阻火器是用于安装原油、汽油、煤油、柴油、芳烃、硫等各类油品或其它化工物料的固定顶式储罐上,通常与呼吸阀配套使用,其主要功能是允许易燃易爆的气体通过,对外界传入储罐的火焰起有阻止与窒息作用。该阻火器可以与通气管配套或单独使用,其它规格产品可按用户要求提供。 该阻火器适用于管道、闪点低于28℃的甲类、油品、氢氧液化类和闪点低于60℃的煤油、柴油、甲笨、原油等,可与呼吸阀配套使用,又可单独使用,内浮顶油罐通气管上,加油站地下油罐通气管上。
【执行标准】
设计规范:GB5908-86试验与检验: GB1347-92
法兰连接:JB/T79、GB9112~9131、HG20592、SH3406、ANSI B16.5
产品标识:GB/T 12220
供货规范:JB/T 7928
【技术参数】
| 阀体材料 | 碳钢WCB、不锈钢304、316、 |
| 阻火芯件材料 | 不锈钢防爆阻火波纹板 |
| 密封件材料 | 耐油石棉橡胶、四氟PTFE |
| 环境温度 ℃ | ≤480 |
| 公称压力(MPa) | 0.6~5.0 |
| 防爆级别 | BS5501:ⅡA、ⅡB、ⅡC |
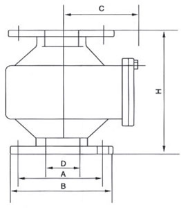
【连接尺寸】

|
规格
|
D
|
A
|
B
|
C
|
H
|
|
DN50
|
50
|
110
|
140
|
114
|
210
|
|
DN100
|
100
|
170
|
205
|
150
|
284
|
|
DN150
|
150
|
225
|
260
|
185
|
375
|
|
DN200
|
200
|
280
|
315
|
230
|
445
|
|
DN250
|
250
|
335
|
370
|
276
|
500
|
|
DN300
|
300
|
395
|
435
|
276
|
500
|
|
DN400
|
400
|
495
|
535
|
335
|
520
|
|
DN500
|
500
|
600
|
640
|
400
|
550
|
【结构图片】

声明:本文中所有文字、数据、图片均适用于参考,ZGB-2抽屉式波纹阻火器的具体性能参数、结构尺寸参数、价格等详情,请联系我们的销售、技术工程师,电话:021-5266 6877。

