当前位置:首页 > 阀门产品 > 球阀 > 技术支持热线:021-5266 6877
氧气专用铜球阀
人气:
氧气专用铜球阀
  • 质量稳定:实行全过程质量监控,细致入微,全方位检测!
  • 价格合理:高效内部成本控制,减少了开支,让利于客户!
  • 交货快捷:先进生产流水线,充足的备货,缩短了交货期!
【产品用途】
氧气专用铜球阀采用材质优良的硅黄铜或不锈钢铸造而成,具有机械强度高,耐磨损、安全性好等优点。使用在氧气管路上,具有最佳的防爆阻燃性能,消除了氧气管路上的不安全因素,广泛应用于钢铁、冶金、石化、化工等用氧工程的管网中。除了具有普通阀门的功能外,又有其自身的特点。在制造时采用严格的禁油措施,并且所有零件在安装前均进行严格的脱脂处理。
【产品特点】
1、防燃阻火:主要部件的材质为铜合金,属不可燃材料,即使与高速气流中的固体粒子碰撞也不会产生火花。因此,本阀具有最佳的防燃阻火性能
2、安全可靠:本阀带有防尘、防水、防油污装置,所有与氧气接触的阀件在组装前均经过严格脱脂和禁油措施,填料材质为聚四氟乙烯,可确保使用时安全可靠
3、法兰端均设有导电螺孔,以防静电
【执行标准】
设计规范:GB/T 12233
结构长度:GB/T 12221
连接法兰:JB/T 79,HG20592,GB9113
试验与检验:JB/T 9092,GB/T13927
压力-温度:GB/T 9131
产品标识:GB/T 12220
【产品型号】
材质 型号
16-4硅黄铜

QY41F-16T,QY41F-25T,QY347F-16T,QY347F-25T

【产品性能规范】
氧气专用铜球阀性能规范
型号 QY41F-16T,QY347F-16T QY41F-25T,QY347F-25T
公称压力(MPa) 1.6 2.5
密封试验压力(MPa) 1.76 2.75
壳体试验压力(MPa) 2.4 3.75
适用温度(℃) ≤150℃
材料 阀体、侧体 16-4硅黄铜
球体 304SS
填料 聚四氟乙烯
手轮 QT450-10
阀杆 304SS
垫片 聚四氟乙烯
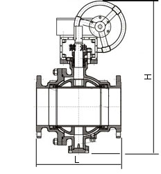
【主要外形连接尺寸】
PN16氧气专用铜球阀外形尺寸
DN 15 20 25 32 40 50 65 80 100 125 150 200
L 130 140 150 165 180 200 220 250 280 320 360 400
H 59 63 75 85 95 107 140 152 178 252 272 342

PN25氧气专用铜球阀外形尺寸
DN 15 20 25 32 40 50 65 80 100 125 150 200
L 130 140 150 165 180 200 220 250 320 400 400 550
H 59 63 75 85 95 107 140 152 178 252 272 345

【结构图片】

氧气专用铜球阀结构图
声明:本文中所有文字、数据、图片均适用于参考,氧气专用铜球阀的具体性能参数、结构尺寸参数、价格等详情,请联系我们的销售、技术工程师,电话:021-5266 6877。