【产品用途】
三通球阀是一种能对介质流向进行切换以及对介质进行分流或混合的阀门,三通球阀分为L型和T型,L型三通球阀适用于介质流向的切换,能使相互垂直的两个通道连通;T型三通球阀适用于介质的分流、合流或流向切换,T型孔道可以使三个通道互相连通或使其中两个通道连通,三通球阀一般采用两个阀座结构,亦可根据用户要求采用四阀座结构。。
【产品特点】
1、一阀多用:任一通口可用作入口而无泄漏,三通既可制成L型通口,也可制成T型通口结构紧凑、启闭迅速、流道畅通、流体阻力小
2、密封性能好:利用四面阀座材料聚四氟乙烯弹性变形实现无泄漏密封
【执行标准】
设计规范:GB/T 12237结构长度:GB/T 12221
连接法兰:JB/T 79,HG20592,GB9113,ANSI
试验与检验:JB/T 9092,GB/T13927
压力-温度:GB/T 9131
产品标识:GB/T 12220
【产品型号】
| 材质 | 型号 |
| WCB |
Q45F-16C,Q45F-25,Q45F-40,Q45F-64,Q45F-100 |
|---|---|
| CF8 | Q45F-16P,Q45F-25P,Q45F-40P,Q45F-64P,Q45F-100P |
| CF3 | Q45F-16R,Q45F-25R,Q45F-40R,Q45F-64R,Q45F-100R |
【产品性能规范】
| 公称压力(MPa) | 1.6 | 2.5 | 4.0 | |
| 密封试验压力(MPa) | 1.76 | 2.75 | 4.4 | |
| 壳体试验压力(MPa) | 2.4 | 3.75 | 6.0 | |
| 适用温度(℃) | ≤150℃ | |||
| 材料 | 阀体、侧体 | WCB,CF8,CF3 | ||
| 球体 | 304SS,316SS | |||
| 填料 | 聚四氟乙烯 | |||
| 手轮,手柄 | QT450-10 | |||
| 阀杆 | 304SS,316SS | |||
| 垫片 | 聚四氟乙烯 | |||
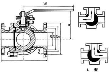
【主要外形连接尺寸】
| 公称通径 | 主要外形尺寸和连接尺寸 | |||||||
| L | D | D1 | D2 | b | Z-d | H | W | |
| 15 | 108 | 95 | 65 | 45 | 14 | 414 | 95 | 140 |
| 20 | 117 | 105 | 75 | 55 | 14 | 414 | 105 | 160 |
| 25 | 127 | 115 | 85 | 65 | 14 | 414 | 113 | 180 |
| 32 | 140 | 135 | 100 | 78 | 16 | 418 | 135 | 250 |
| 40 | 165 | 145 | 110 | 85 | 16 | 418 | 142 | 300 |
| 50 | 178 | 160 | 125 | 100 | 16 | 418 | 154 | 350 |
| 65 | 191 | 180 | 145 | 120 | 18 | 418 | 175 | 350 |
| 80 | 203 | 195 | 160 | 135 | 20 | 818 | 190 | 400 |
| 100 | 229 | 215 | 180 | 155 | 20 | 818 | 225 | 500 |
| 125 | 356 | 245 | 210 | 185 | 22 | 818 | 245 | 600 |
| 150 | 394 | 280 | 240 | 210 | 24 | 823 | 265 | 800 |
| 200 | 457 | 335 | 295 | 265 | 26 | 1223 | 305 | 800 |
| 250 | 533 | 405 | 355 | 320 | 30 | 1225 | 370 | 1300 |
【结构图片】
声明:本文中所有文字、数据、图片均适用于参考,三通球阀的具体性能参数、结构尺寸参数、价格等详情,请联系我们的销售、技术工程师,电话:021-5266 6877。

