【产品介绍】
ZSPQ气动活塞切断阀由切断机构与气动活塞执行机构组成。切断机构采用直通单座形成,DN20阀芯为单导向,DN25~200阀芯为双导向,具有结构简单、操作方便、使用可靠、快速开闭等特点。主要应用于无杂质、无颗粒的液体、气体介质,要求快速严密关闭,快速放空的自动控制系统中。
【执行标准】
设计规范:GB/T 17213.1结构长度:GB/T 12221
试验与检验:ASME B16.104
法兰连接:JB/T79、GB9112~9131、HG20592、SH3406、ANSI B16.5
产品标识:GB/T 12220
供货规范:JB/T 7928
【技术参数】
| 公称通径DN | 20 | 25 | 32 | 40 | 50 | 65 | 80 | 100 | 125 | 150 | 200 | |
| 阀座直径do(mm) | 26 | 43 | 43 | 52 | 62 | 79 | 94 | 115 | 140 | 166 | 216 | |
| 额定流量系数Kv | 6. | 10 | 15 | 25 | 40 | 65 | 100 | 150 | 260 | 350 | 540 | |
| 允许压差(MPa) | 气开式 | 4.0 | 4.0 | 4.0 | 2.8 | 3.5 | 2.4 | |||||
| 气关式 | 2.5 | 1.7 | 1.0 | 1.1 | 0.8 | 1.6 | ||||||
| 行程mm | 16 | 25 | 40 | 60 | ||||||||
| 切断时间(S) | 1~2 | 2~4 | ||||||||||
| 额定行程偏差 | ±15% | |||||||||||
| 公称压力(MPa) | 1.6,2.5、4.0、6.4MPa | |||||||||||
| 阀体可选材质 | WCB、CF8,CF3,CF3M,CF8M | |||||||||||
| 阀芯可选材质 | 304,316 | |||||||||||
| 流量特性 | 快开式 | |||||||||||
| 允许泄漏量 | ≤额定流量x10-3 | |||||||||||
| 环境温度℃ | -40~+85 | |||||||||||
| 气源 | 压力:0.5MPa,接头:M10x1 | |||||||||||
| 可选配件 | 手轮、电磁阀、回讯器(或行程开关)、空气过滤减压器 | |||||||||||
| 公称压力/介质温度/阀体材料 | 1.6MPa | 常温-20℃~+200℃/ 铸铁HT200 | ||||||||||
| 4.0MPa | 常温-20℃~+200℃/ 铸钢WCB, 铸不锈钢CF8,CF3 | |||||||||||
| 中温-40℃~+450℃/ 铸钢WCB, 铸不锈钢CF8,CF3 | ||||||||||||
| 6.4MPa | 常温-20℃~+200℃ 铸钢WCB 铸不锈钢CF8,CF3 | |||||||||||
| 中温-40℃~+450℃/ 铸钢WCB, 铸不锈钢CF8,CF3 | ||||||||||||
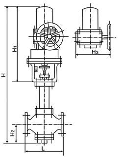
【连接尺寸】
|
公称 通径 |
L | H2 | 带手轮 | 不带手轮 | |||
| H | H1 | H3 | H | H1 | |||
| 20 | 180 | 53 | 662 | 447 | 222 | 574 | 359 |
| 25 | 190 | 111 | 732 | 644 | |||
| 32 | 210 | 117 | 744 | 656 | |||
| 40 | 230 | 131 | 885 | 570 | 280 | 778 | 463 |
| 50 | 255 | 146 | 915 | 808 | |||
| 65 | 285 | 181 | 1131 | 706 | 389 | 969 | 542 |
| 80 | 310 | 190 | 1147 | 983 | |||
| 100 | 355 | 194 | 1155 | 991 | |||
| 125 | 425 | 256 | 1588 | 1022 | 1305 | 739 | |
| 150 | 460 | 266 | 1608 | 1325 | |||
| 200 | 560 | 289 | 1659 | 1376 | |||
|
公称 通径 |
L | H2 | 带手轮 | 不带手轮 | |||
| H | H1 | H3 | H | H1 | |||
| 20 | 180 | 53 | 813 | 447 | 222 | 725 | 359 |
| 25 | 190 | 111 | 883 | 795 | |||
| 32 | 210 | 117 | 895 | 807 | |||
| 40 | 230 | 131 | 1036 | 570 | 280 | 929 | 463 |
| 50 | 255 | 146 | 1066 | 969 | |||
| 65 | 285 | 181 | 1296 | 706 | 389 | 1132 | 542 |
| 80 | 310 | 190 | 1310 | 1146 | |||
| 100 | 355 | 194 | 1318 | 1154 | |||
| 125 | 425 | 256 | 1803 | 1022 | 1520 | 739 | |
| 150 | 460 | 266 | 1823 | 1540 | |||
| 200 | 560 | 289 | 1874 | 1591 | |||
【结构图片】
声明:本文中所有文字、数据、图片均适用于参考,ZSPQ气动活塞切断阀的具体性能参数、结构尺寸参数、价格等详情,请联系我们的销售、技术工程师,电话:021-5266 6877。

