【产品用途】
波纹管截止阀采用成形不锈钢波纹管设计,波纹管往复试验10000次无故障,密封性能可靠,适用于易燃易爆,有毒有害介质的工矿,可以有效地防止阀门外漏现象。
【产品特点】
1、产品结构合理、密封可靠2、密封面堆焊Co基硬质合金,耐磨、耐腐、抗摩擦性能好、使用寿命长
3、阀杆调质及表面氮化处理,有良好的抗腐和抗摩擦性能
4、零件材质及法兰、堆焊端尺寸可根据实际工况或用户要求合理选配,满足各种工程需要
5、阀芯可根据需要做承切断型和调节型
【执行标准】
设计标准:GB12235结构长度:GB12221
连接法兰:GB9113、JB/T79、HG20596
试验和检验:JB/T9092、GB/T13927
【产品型号】
| 材质 | 国标型号 |
| WCB |
WJ41H-16C,WJ41H-25,WJ41H-40 |
|---|---|
| 304SS |
WJ41H-16P,WJ41H-25P,WJ41H-40P |
| 316SS | WJ41H-16R,WJ41H-25R,WJ41H-40R |
【产品性能规范】
| 型号 | WJ41H-16C | WJ41H-25C | WJ41H-16P | WJ41H-25P | WJ41H-16R | WJ41H-25R | |
| 工作压力(MPa) | 1.6 | 2.5 | 1.6 | 2.5 | 1.6 | 2.5 | |
| 适用温度(℃) | ≤425 | ≤200 | |||||
| 适用介质 | 无腐蚀性介质 | 腐蚀性介质 | |||||
| 材料 | 阀体、阀盖、闸板 | 碳素钢 | CF8 | ||||
| 阀杆 | 铬不锈钢 | CF8 | CF3 | ||||
| 密封面 | 铬不锈钢或碳钢堆焊硬质合金 | 铬不锈钢或碳钢堆焊硬质合金 | |||||
| 填料 | 柔性石墨或夹不锈钢丝柔性石墨 | 柔性石墨或夹不锈钢丝柔性石墨 | |||||
| 波纹管 | 304SS | 304SS | 316SS | ||||
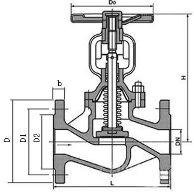
【产品主要连接尺寸】
|
公称通径 DN |
主要外形尺寸和连接尺寸 | ||||||
| L | D | D1 | D2 | b | H | Do | |
| WJ41H-16C WJ41H-16P | |||||||
| 15 | 130 | 95 | 65 | 47 | 14 | 202 | 120 |
| 20 | 150 | 105 | 75 | 58 | 14 | 231 | 140 |
| 25 | 160 | 115 | 85 | 68 | 14 | 231 | 140 |
| 32 | 180 | 140 | 100 | 78 | 16 | 286 | 160 |
| 40 | 200 | 150 | 110 | 88 | 16 | 317 | 200 |
| 50 | 230 | 165 | 125 | 102 | 16 | 317 | 200 |
| 65 | 290 | 185 | 145 | 122 | 18 | 331 | 240 |
| 80 | 310 | 200 | 160 | 123 | 20 | 402 | 240 |
| 100 | 350 | 220 | 180 | 158 | 20 | 416 | 320 |
| 125 | 400 | 250 | 210 | 184 | 22 | 467 | 360 |
| 150 | 480 | 285 | 240 | 212 | 24 | 525 | 360 |
| 200 | 600 | 340 | 295 | 268 | 26 | 611 | 500 |
【结构图片】
声明:本文中所有文字、数据、图片均适用于参考,波纹管截止阀的具体性能参数、结构尺寸参数、价格等详情,请联系我们的销售、技术工程师,电话:021-5266 6877。

