【产品介绍】
伸缩蝶阀适用子温度≤80℃、公称压力为1.0—1.6MPa的石油、化工食品、医药轻纺、造纸、电力、给排水、气体管道上作调节流量和截流介质的作用,具有补偿管道热胀冷缩的功能。设计新颖、合理,结构独特,重量轻,操作方便,起闭迅速。伸缩蝶阀既能起到调节流量和截流作用,又能补偿管道温度差所产生的热胀冷缩功能,同时也便于安装和拆卸,为一阀多用产品。密封部位可调节更换,密封性能可靠等特点。
【产品特点】
1、设计新颖、合理、结构独特、重量轻、操作方便、起闭迅速。2、本伸缩蝶阀既能起到调节流量和截流作用,只能补偿管道温差,所产生的热胀冷缩功能,同时也便于安装和拆卸,为一阀多用产品。
【执行标准】
设计标准 GB12238、API609、JIS B2064;结构长度 GB/T15188.2
法兰标准 GB4216、GB9113、GB9115
试验标准 GB/T13927、JB/T9092
【产品型号】
| 材质 | 型号 |
| 法兰式 |
SD341X-10,SD341X-16,SD343H-16C |
|---|
【产品性能规范】
| 公称压力(MPa) | 1.0 | 1.6 | |
| 密封试验压力(MPa) | 1.1 | 1.76 | |
| 壳体试验压力(MPa) | 1.5 | 2.4 | |
| 适用温度(℃) | ≤80℃ | ||
| 材料 | 阀体、蝶板 | HT200,WCB | |
| 填料 | 聚四氟乙烯 | ||
| 手轮、手柄 | QT450-10 | ||
| 密封圈 | 丁腈橡胶,不锈钢 | ||
| 阀杆 | 2Cr13 | ||
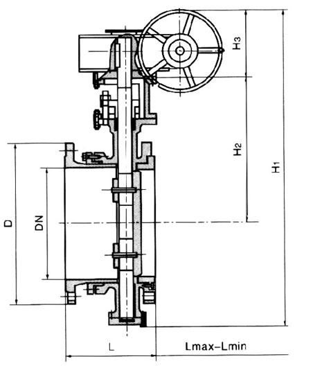
【主要外形连接尺寸】
|
公称通径 DN(mm) |
公称压力 PN(MPa) |
连接尺寸 | 外 形 尺 寸 | |||||
| L | D1 | D | Z-φd | SD341X | ||||
| Ho | A | B | ||||||
| 50 | 1.0/1.6 | 108 | 125 | 165 | 4-18 | 310 | 125 | 193 |
| 65 | 112 | 145 | 185 | 4-18 | 335 | 125 | 193 | |
| 80 | 114 | 160 | 200 | 4-18/8-18 | 420 | 125 | 193 | |
| 100 | 127 | 180 | 220 | 8-18 | 440 | 125 | 193 | |
| 125 | 140 | 210 | 250 | 8-18 | 460 | 125 | 193 | |
| 150 | 140 | 240 | 285 | 8-22 | 510 | 125 | 193 | |
| 200 | 152 | 295 | 340 | 8-22/12-22 | 615 | 165 | 283 | |
| 250 | 250 | 350/355 | 390/405 | 12-22/12-25 | 680 | 165 | 283 | |
| 300 | 270 | 400/410 | 440/460 | 12-22/12-25 | 775 | 175 | 334 | |
| 350 | 290 | 460/470 | 500/520 | 16-22/16-25 | 840 | 175 | 334 | |
| 400 | 310 | 515/525 | 565/580 | 16-25/16-30 | 860 | 210 | 425 | |
| 450 | 1.0 | 330 | 565 | 615 | 20-25 | 995 | 210 | 425 |
| 500 | 350 | 620 | 670 | 20-25 | 1055 | 210 | 425 | |
| 600 | 390 | 725 | 780 | 30-30 | 1160 | 210 | 425 | |
| 700 | 430 | 840 | 895 | 24-30 | 1320 | 320 | 620 | |
| 800 | 470 | 950 | 1010 | 24-34 | 1440 | 20 | 620 | |
| 900 | 510 | 1050 | 1110 | 28-34 | 1545 | 320 | 620 | |
| 1000 | 550 | 1160 | 1220 | 28-34 | 1655 | 400 | 620 | |
| 1200 | 630 | 1380 | 1450 | 32-41 | 1875 | 400 | 620 | |
| 1200 | 1.O/0.6 | 630 | 1380/1340 | 1450/1400 | 32-41/32-34 | 1875 | 400 | 620 |
| 1400 | 710 | 1590/1560 | 1675/1620 | 36-48/36-34 | 2000 | 560 | 680 | |
| 1600 | 790 | 1820/1760 | 1915/1820 | 40-54/40-34 | 2200 | 560 | 680 | |
| 1800 | 870 | 2020/1970 | 2115/2045 | 44-54/44-41 | 2410 | 560 | 680 | |
| 2000 | 950 | 2230/2180 | 2325/2265 | 46-54/48-48 | 2635 | 640 | 750 | |
【结构图片】
声明:本文中所有文字、数据、图片均适用于参考,伸缩蝶阀的具体性能参数、结构尺寸参数、价格等详情,请联系我们的销售、技术工程师,电话:021-5266 6877。

